Aller au contenu principal
Retour à la recherche

Maison 10 pièces, 175 m2

Réf. : VM2933-14097
Dernière mise à jour de l’annonce : 08/10/2025

Vente

500 000 € (honoraires de négociation inclus)
Honoraires à la charge du vendeur
14130 Le Breuil-en-Auge
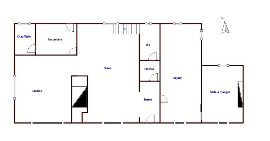
LE BREUIL EN AUGE - Maison de Maitre, composée : Au rez-de-chaussée : une entrée sur le salon desservant séjour et salle à manger, cuisine aménagée-équipée, chaufferie, buanderie, alcove et WC séparés. A l'étage : une suite parentale avec sa salle de douche et WC, trois chambres, salle de douche et WC séparé. Au deuxième : deux chambres et une pièce avec point d'eau pour l'installation d'une salle de bains. Sur terrain plat et arboré de 3 572 m². Garage deux places en annexe, abri de jardin. Dans un environnement privilégié, sans nuisances. Nous aimons son environnement et ses volumes. Les informations sur les risques auxquels ce bien est exposé sont disponibles sur le site Géorisques : georisques.gouv.fr

Général

Nombre de pièces : 10
Nombre de chambres : 6
Surface :  175 m2
Surface Carrez :  175 m2
Superficie : 3 572 m2
Nombre de niveaux : 1
Exposition :  Sud-est

Bilan énergétique

Date du diagnostic :  15-01-2025
DPE
Logement économe
190 kwh/m²/an
Logement énergivore
GES
Faible émission de GES
38 kg CO₂/m²/an
Forte émission de GES

Depuis le 1er juillet 2021, c’est la plus mauvaise des deux performances (DPE ou GES) qui est retenue au final.

Équipements

Accès handicapé : Oui
Cuisine : Oui
Stationnement : Oui

Conditions de vente

Prix HNI :  500 000 €
(honoraires de négociation inclus)
Type d'honoraires :  À la charge du vendeur

Contact

Adresse : 42 Rue Hamelin
Code postal :  14130
Ville :  PONT L EVEQUE