Aller au contenu principal
Retour à la recherche

Maison 6 pièces, 198 m2

Réf. : 61068-22
Dernière mise à jour de l’annonce : 09/04/2026

Vente

179 350 € (Honoraires de négociation inclus)
170 000 € (Prix net vendeur)
Montant des honoraires : 9 350 €
Pourcentage des honoraires : 6 %
Honoraires à la charge de l'acquéreur
61260 Val-au-Perche
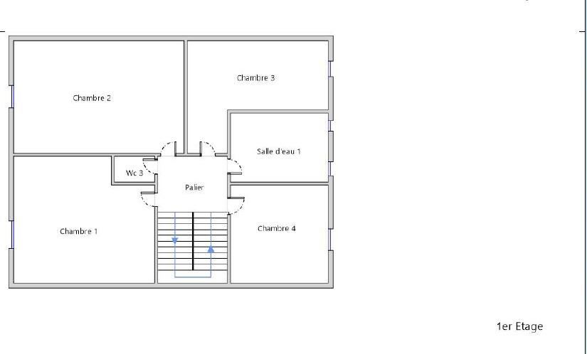
Située dans un cadre calme et verdoyant, cette maison familiale avec jardin offre de beaux volumes lumineux et un fort potentiel d’aménagement, idéale pour un projet de résidence principale ou une famille souhaitant personnaliser son futur chez-soi. 📍 Localisation stratégique À 10 min de La Ferté-Bernard, 15 min de Nogent-le-Rotrou et 18 min de Bellême Gare SNCF, écoles et commerces à proximité Accès rapide à l’autoroute A11 (10 km) ✨ Les points forts du bien 198 m² habitables sur 3 niveaux 4 chambres + 2 pièces à aménager au 2ᵉ étage Terrain clos et arboré de 1 086 m², parfait pour profiter du jardin ou installer une terrasse 2 garages + stationnement extérieur Sous-sol total pour rangement et loisirs Chauffage gaz de ville, menuiseries PVC double vitrage avec volets roulants électriques Tout à l’égout 🛋️ Agencement pratique et modulable Rez-de-chaussée : Entrée accueillante Salon / séjour lumineux de 35 m² avec accès terrasse et jardin Cuisine aménagée et équipée Bureau ou chambre en rez-de-chaussée Véranda WC indépendant 1er étage : Palier desservant 4 chambres (dont une avec lavabo et dressing) Salle d’eau avec WC 2e étage (à rafraîchir) : 2 pièces mansardées + salle de douche Potentiel d’aménagement pour chambres supplémentaires, bureau ou espace loisirs ✅ Adaptée pour des retraités grâce à un agencement pratique et confortable. Une maison spacieuse, lumineuse et pleine de potentiel, dans un village calme avec toutes les commodités à portée de main. Idéale pour une famille ou un projet de résidence principale personnalisable. 📞 Contactez nous dès maintenant pour organiser une visite et découvrir tout le potentiel de ce bien !

Général

Nombre de pièces : 6
Nombre de chambres : 4
Surface :  198 m2
Etat : Bon
Nombre de niveaux : 3

Bilan énergétique

Date du diagnostic :  17-07-2025
DPE
Logement économe
328 kwh/m²/an
Logement énergivore
GES
Faible émission de GES
66 kg CO₂/m²/an
Forte émission de GES

Depuis le 1er juillet 2021, c’est la plus mauvaise des deux performances (DPE ou GES) qui est retenue au final.

Équipements

Cuisine : Oui
Terrasse : Oui
Cave : Oui
Stationnement : Oui

Conditions de vente

Prix HNI :  179 350 €
(honoraires de négociation inclus)
Prix net vendeur :  170 000 €
Honoraires :  9 350 € (Montant des honoraires de négociation)
Pourcentage d'honoraires :  6 %
Frais d’acte :  14 517 €
Type d'honoraires :  À la charge de l'acquéreur

Contact

Négociateur : DIOT Jennifer
Téléphone : 06 08 73 83 52
Adresse : 5 rue du cimetière
Code postal :  61130
Ville :  BELLEME